
Framex HS 170
Podnoszono-przesuwny ciepły system PVC
System Framex HS 170 służy do montażu w dużych otworach, skrzydła pozwalają na optymalne wykorzystanie przestrzeni, a przeszklenie od podłogi do sufitu zapewnia panoramiczny widok.

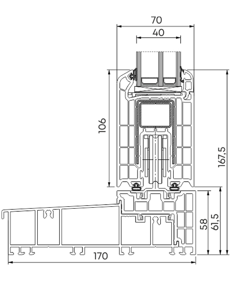
Głębokość montażowa ramy
170 mm

Grubość wypełnienia
40 mm

System uszczelnienia
2 kontury, TPE

Liczba skrzydeł
1, 2























