
Framex FTS 72
Aluminiowy system przesuwny z ciepłym zawiasem równoległym
Ma wysoką wytrzymałość i właściwości statyczne, co umożliwia produkcję dużych konstrukcji.

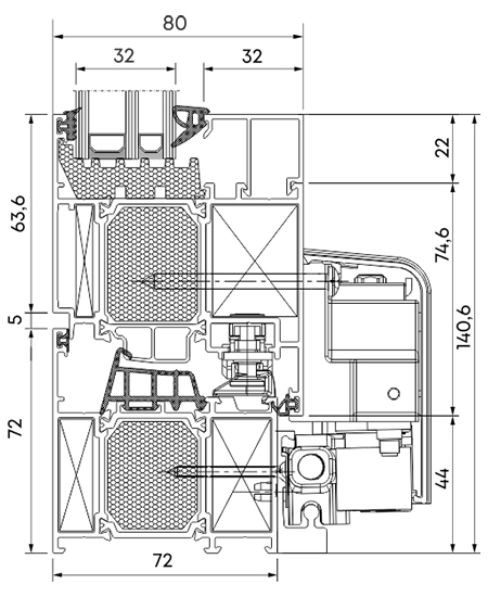
Głębokość montażowa ramy
72 mm

Grubość wypełnienia
26-56 mm

System uszczelnienia
3 obwody, EPDM

Liczba skrzydeł w konstrukcji
1, 2
















