
Framex PS 60
Zimny System przesuwny PCV
Framex PS60 – idealne rozwiązanie dla okien w nieogrzewanych pomieszczeniach

Głębokość montażowa ramy
60 mm

Grubość wypełnienia
20 mm

System uszczelnienia
2 kontury, filcowy

Liczba skrzydeł
2, 3, 4, 6

Zimny System przesuwny PCV
Framex PS60 – idealne rozwiązanie dla okien w nieogrzewanych pomieszczeniach

Głębokość montażowa ramy
60 mm

Grubość wypełnienia
20 mm

System uszczelnienia
2 kontury, filcowy

Liczba skrzydeł
2, 3, 4, 6

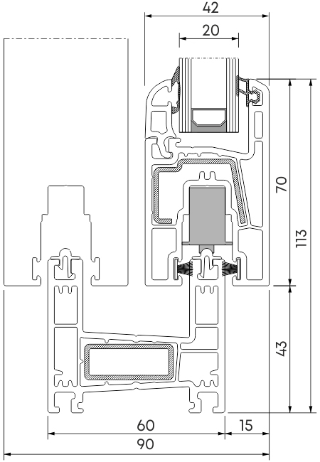
| Typ systemu | przesuwny |
| Głębokość montażowa ramy | 60 mm |
| Głębokość montażu skrzydła | 42 mm |
| Liczba torów | 2 |
| Widoczna część profilu (rama + skrzydło) | 113 mm |
| Wysokość progu | 56 mm |
| Grubość wypełnienia | 20 mm |
| Liczba komór profilu (rama/skrzydło) | 3/2 |
| System uszczelnienia | 2 kontury, filcowy |
| Wodoszczelność | 6А |
| Przepuszczalność powietrza | 2 |
| Min rozmiar skrzydła | 500х1500 mm |
| Max rozmiar skrzydła | 1000х1850 mm |
| Max szerokość konstrukcji: | 4000 mm |
| Max waga skrzydła | 120 kg |
| Liczba skrzydeł w konstrukcji | 2, 3, 4, 6 |
| Typ klamki | naciskowa |
| Zamykanie z zewnątrz | brak |
Profile PCV systemu Framex PS 60 wykonane są z polichlorku winylu PVC-U zgodnie z wymaganiami DSTU B B.2.7-130. Grubość ścianek profili odpowiada klasie B według DIN EN 12608 / klasie B według DSTU B B.2.7-130.
Framex PS60 idealnie nadaje się do szklenia balkonów, oranżerii, altan ogrodowych, ogrodów zimowych oraz innych przeszkleń.

Dzięki oszczędności miejsca zwiększa powierzchnię użytkową, co jest szczególnie przydatne tam, gdzie jej brakuje, i pozwala na większe przenikanie światła do wnętrza.

System PS60 zapewnia ochronę przed czynnikami atmosferycznymi – wiatrem, kurzem, deszczem, hałasem, co zapewnia komfortowe warunki na tarasie zewnętrznym i chroni przed czynnikami zewnętrznymi.

Cała konstrukcja jest bezpiecznie blokowana w pozycji zamkniętej za pomocą systemu zamków ryglowych oraz obracanych nakładkowych klamek.

Dwa obwody szczotkowych uszczelek zapobiegają bezpośredniemu przedostawaniu się wilgoci, kurzu i zanieczyszczeń oraz zapewniają ochronę przed przeciągami.
Laminacja konstrukcji PVC
Zabarwienie profilu może być standardowo białe lub kolorowe. PVC jest laminowane z obu stron – na życzenie klienta w wybranym kolorze laminacji.










60 mm – Głębokość montażowa ramy
20 mm – Filling thickness
2 kontury, filcowy – Sealing system
2, 3, 4, 6 – Liczba skrzydeł
64-151 mm – Głębokość montażowa ramy
8 mm, 20 mm – Grubość wypełnienia
2 kontury, filcowy – System uszczelnienia
od 2 do 10 – Liczba skrzydeł
45/81 mm Głębokość montażowa ramy
4-10 mm, 16-22 mm – Grubość wypełnienia
2 kontury, filcowy – System uszczelnienia
2, 3, 4, 5, 6 – Liczba skrzydeł
72 mm – Głębokość montażowa ramy
26-56 mm – Grubość wypełnienia
3 kontury, EPDM – System uszczelnienia
1, 2 – Liczba skrzydeł
71 mm – Głębokość montażowa ramy
24, 32, 42 mm – Grubość wypełnienia
2 kontury, TPE – Uszczelnienie
1, 2 – Liczba skrzydeł
71 mm – Głębokość montażowa ramy
24, 32, 42 mm – Grubość wypełnienia
2 kontury, filcowy – Uszczelnienie
3, 4, 5, 6, 7 – Liczba skrzydeł
60/90 mm – Głębokość montażowa ramy
4, 6 mm – Grubość wypełnienia
2 kontury, filcowy – System uszczelnienia
2,3,4,5,6 – liczba skrzydeł w konstrukcji
Nasz specjalista skontaktuje się z Tobą w najbliższym czasie i odpowie na wszystkie pytania dotyczące Framex.
Please enter your username or email address. You will receive a link to create a new password via email.
