Profil okienny Framex 80

Framex 80

System okienny PVC

Innowacyjny, 7-komorowy system okienny z PVC klasy premium z podwyższonym komfortem (Smart Comfort) System ten wyprzedza dotychczasowe standardy energooszczędności, łącząc ponadczasowy design, doskonałą jakość i wysoką niezawodność.

framex-icon-kilkist-kamer

Liczba komór
7

framex-icon-montajna-glubuna

Głębokość montażowa
80 mm

framex-icon-systema-ushilnennya

System uszczelnienia
3 kontury, TPE

framex-icon-tovshina-zapovnennya

Grubość wypełnienia
42 mm, 50 mm

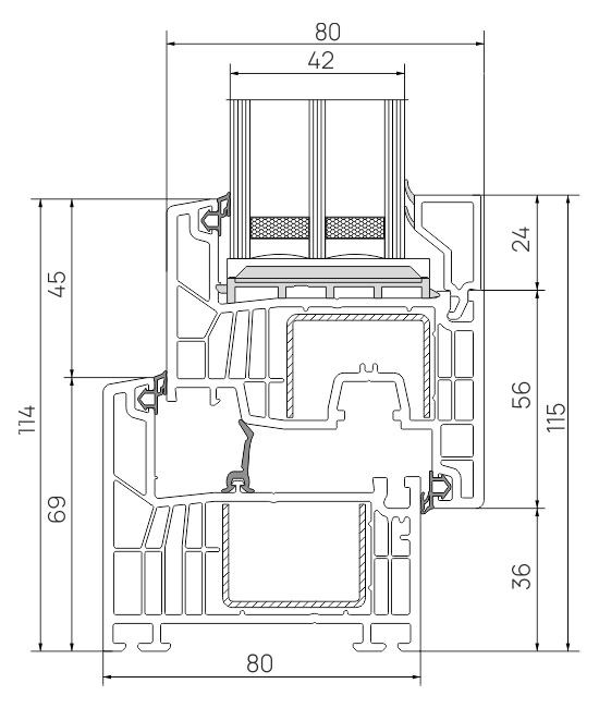
Dane techniczne Framex 80 MD

Głębokość montażu80 mm
Wysokość widocznej części profilu (rama + skrzydło)115 mm
Grubość wypełnienia42 mm, 50 mm
Liczba komór profilu7
System uszczelnienia3 kontury, TPE
Współczynnik przenikania ciepła profilu (Uf)1,1 W/m²K
Współczynnik oporu przenikania ciepła profilu (Rf)0,91 m²°С/W
Max rozmiar skrzydła1600х2900 mm
Max rozmiar konstrukcji3000х3000 mm
Min rozmiar konstrukcji400х400 mm
Szerokość głównej komory41,8 mm
Listwy przyszybowepod kątem 45°
Powierzchniabłyszcząca
Okuciaoś 13 mm
Ochrona przed włamaniemRC2

Dane techniczne Framex 80 AD

Głębokość montażu 80 mm
Wysokość widocznej części profilu (rama + skrzydło) 115 mm
Grubość wypełnienia 42 mm, 50 mm
Liczba komór profilu 5
System uszczelnienia 2 kontury, TPE
Współczynnik przenikania ciepła profilu (Uf) 1,25 W/m²K
Współczynnik oporu przenikania ciepła profilu (Rf) 0,91 m²°С/W
Max rozmiar skrzydła 1600х2900 mm
Max rozmiar konstrukcji 3000х3000 mm
Min rozmiar konstrukcji 400х400 mm
Szerokość głównej komory 41,8 mm
Listwy przyszybowe pod kątem 90°
Powierzchnia błyszcząca
Okucia oś 13 mm
Ochrona przed włamaniem RC2

Profile PVC Framex 80 są produkowane z polichlorku winylu (PVC-U) zgodnie z wymogami DSTU B V.2.7-130. Grubość ścianek profili odpowiada klasie B zgodnie z DIN EN 12608 / klasa B wg DSTU B V.2.7-130.

Vergleichende Eigenschaften von Framex 80 MD und Framex 80 AD

Konstrukcja systemu 80 mm z ramą kwadratową 90° i listwą 45°
Framex 80 MD Framex 80 AD
typ systemu okienno-drzwiowe okienno-drzwiowe
Liczba komór profilu 7 5
Głębokość montażu 80 mm 80 mm
Współczynnik przenikania ciepła profilu (Uf) 1.1 W/m² K 1.25 W/m² K
Współczynnik oporu przenikania ciepła profilu (Rf) 0,91 m²°С/W
System uszczelnienia 3 kontury, TPE 2 kontury, TPE
Grubość wypełnienia 24, 42, 48, 50 mm
Listwy przyszybowe pod kątem 45° pod kątem 90°
min rozmiar konstrukcji 400х400 mm
max rozmiar konstrukcji 3000х3000 mm
max rozmiar skrzydła 1600х2900 mm
Ochrona przed włamaniem RC2

Zastosowanie/Zalety Framex 80 MD

System Framex 80 MD to nowe możliwości dla budownictwa prywatnego i obiektowego.

Konstrukcja profili zapewnia wysokie parametry oporu przenikania ciepła. Głębokość wypełnienia do 50 mm pozwala na stosowanie w oknach szerokich szyb zespolonych o wysokich parametrach termoizolacyjnych i akustycznych.

Nowoczesny design profilu listwy o zewnętrznym kącie 45° nadaje konstrukcjom okiennym stylowy wygląd. 3 kontury uszczelnienia zapewniają maksymalne parametry izolacji termicznej, zwiększają właściwości dźwiękoizolacyjne i hydroizolacyjne okna.

Zastosowanie/Zalety Framex 80 AD

System Framex 80 AD to nowe możliwości dla budownictwa prywatnego i obiektowego.

Konstrukcja profili zapewnia wysokie parametry oporu przenikania ciepła. Obsługuje grubość wypełnienia od 24 do 50 mm — od standardowych do energooszczędnych rozwiązań.

Rozszerzony zakres maksymalnych wymiarów skrzydeł: 1000 x 2400 mm. 2 kontury uszczelnienia zapewniają parametry termoizolacyjne, zwiększają właściwości dźwiękoizolacyjne i hydroizolacyjne okna. Do 9 piętra przeszklenia bez łączników w porównaniu z serią 76, gdzie obowiązują ograniczenia do 3 piętra przy zastosowaniu wzmocnienia 2 mm.

Wytrzymałość
Zastosowanie sztywniejszego wzmocnienia zapewnia stabilność konstrukcji

Podwyższone bezpieczeństwo
Dzięki zastosowaniu okuć przeciwwłamaniowych oraz możliwości montażu pakietu szybowego z zewnętrznym szkłem tripleks

Wyrafinowany design jak w aluminium
Skrzydło w jednej płaszczyźnie z ramą, wąskie falce oraz nowy system listew przyszybowych z prostymi krawędziami.

Dekoracja profilu

laminowanie konstrukcji PVC

Profil może być w standardowym kolorze białym lub kolorowym. Laminacja może być wykonana dwustronnie na życzenie klienta w wybranym kolorze.

framex-icon-laminacia-02
framex-icon-laminacia-01

Ponad 50 wariantów dekoracyjnych

Nowoczesna technologia
wklejania pakietu szybowego

Wysokie, stabilne i sztywne skrzydła bez ryzyka osiadania

Kulki szklane 90°

Pozwala nadać oknu prostokątny design okna aluminiowego

Sztywne wzmocnienie

Odporność na wysokie obciążenia wiatrowe i termiczne. Stabilność systemu przy dużym ciężarze oszklenia

80 mm – Głębokość montażowa

3 Kontury uszczelniające

Niezawodna ochrona przed hałasem, zimnem, przeciągami i wilgocią

7-Profilowy system komorowy

Minimalne straty ciepła i niskie koszty ogrzewania zimą.

framex-icon-wind

Dzięki otworom drenażowym i wentylacyjnym zewnętrzne komory ram i skrzydeł umożliwiają kontrolowaną wentylację przestrzeni pomiędzy falcem profilu a krawędzią pakietu szybowego oraz skuteczne odprowadzanie kondensatu i wody deszczowej. Konstrukcja profilu pozwala na odprowadzenie wilgoci na boki lub, przy zastosowaniu specjalnych profili podokiennych, w dół.

framex-icon-rewind

Rowki wyrównujące okładzin zapewniają wysokiej jakości i szybkie szklenie Profile nośne i ekspandery charakteryzują się zwiększoną odpornością termiczną dzięki zwiększonej ilości komór i dodatkowym uszczelkom wzdłuż rowka.

framex-icon-setting

Dodatkowe profile wchodzące w skład systemu umożliwiają różne opcje łączenia konstrukcji ze sobą, a także zwiększanie szerokości profili ramy, co jest niezbędne do szklenia pasmowego fasad i przestrzennego szklenia pawilonów. Nogi profili ramy pozwalają na szczelne połączenie dużej liczby dodatkowych profili, a także elastycznych płyt kotwiących do montażu na ścianie.

framex-icon-window

Szerokość komór wzmacniających profili umożliwia stosowanie profili usztywniających o wysokich parametrach statycznych. Profile usztywniające ramy, skrzydła okiennego, poszerzenia o wysokości 50 mm i profil podokienny są identyczne, co stanowi ważną zaletę dla przetwórców. System profilowy umożliwia stosowanie standardowych okuć różnych producentów, zarówno w wersji zwykłej, jak i przeciwwłamaniowej.

Rozszerzenie możliwości systemu Framex 80

Osłona skrzydła Framex 80

Anodowana aluminiowa nakładka Framex na próg systemu PVC serii 80 (drzwi balkonowe) to solidny i estetyczny element, który pełni zarówno funkcję ochronną, jak i dekoracyjną. Wykonana z anodowanego aluminium, jest odporna na korozję i uszkodzenia mechaniczne.

Ryflowana powierzchnia sprawia, że zarysowania i przetarcia są mniej widoczne, co zapewnia schludny wygląd nawet przy długotrwałym użytkowaniu. Idealnie nadaje się do montażu na progu drzwi balkonowych, wydłużając trwałość całej konstrukcji.

Zaślepka skrzydła Framex 80

Zaślepka słupka Framex to funkcjonalny element okuciowy przeznaczony do estetycznego wykończenia końcówki słupka. Zapewnia eleganckie zakończenie konstrukcji, zapobiega przedostawaniu się kurzu i wilgoci do wnętrza pomieszczenia, a także gwarantuje szczelne przyleganie między skrzydłami a ramą, eliminując przeciągi.

Wykonana z wysokiej jakości tworzywa sztucznego, cechuje się łatwością montażu oraz trwałością w codziennym użytkowaniu. Idealnie pasuje do systemów profili Framex.

Możesz zapoznać się z pozostałą ofertą Framex

Katalog Framex

Twój pomocnik w wyborze

Masz dodatkowe pytania?

Nasz specjalista skontaktuje się z Tobą w najbliższym czasie i odpowie na wszystkie pytania dotyczące Framex.

Compare listings

Compare
Денис Петров
  • Денис Петров